
HD Type Europski Dizalica s jednostrukim nosačem
Europska jednostruka greda s nadzemnim dizalicama je kompaktna dizala koja je projektirana i proizvedena u strogom skladu s FEM i DIN standardom, s naprednom tehnologijom i lijepim dizajnom. Podijeljen u opći tip i vrstu ovjesa, potpora korištenju europske standardne električne podizne platforme, prikladne za rukovanje radionicama i skladišnim materijalom, sastavljanje preciznih dijelova velikih dijelova i druga mjesta.
HD Type Europski Dizalica s jednostrukim nosačem
Kratak opis:
Europska jednostruka greda s nadzemnim dizalicama je kompaktna dizala koja je projektirana i proizvedena u strogom skladu s FEM i DIN standardom, s naprednom tehnologijom i lijepim dizajnom. Podijeljen u opći tip i vrstu ovjesa, potpora korištenju europske standardne električne podizne platforme, prikladne za rukovanje radionicama i skladišnim materijalom, sastavljanje preciznih dijelova velikih dijelova i druga mjesta.

To bi se moglo široko koristiti u proizvodnji strojeva, metalurgije, nafte, petrifaction, luka, željeznica, civilno zrakoplovstvo, hrane, papira, graditeljstva, elektronike industrije radionica, skladišta i drugih materijala rukovanje situacijama, osobito. primijenjen na rukovanje materijalom koji zahtijevaju precizno pozicioniranje, velike komponente precizne situacije montaže.

Detaljne slike:

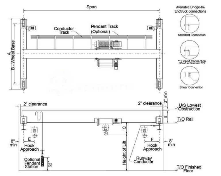
Skica crteža:

Tehnički parametri:
pedalj | m | 7.5 | 10.5 | 13.5 | 16.5 | 19.5 | 22.5 | 25,5 |
Kapacitet | t | 1-12.5t | ||||||
Totalna tezina | kg | 1781-12086 | ||||||
Tegljenje kolica | kg | 405 ~ 740 | ||||||
Maks. Opterećenje kotača | kn | 13,5 90,94- | ||||||
Putnička željeznica | P24-P43 | |||||||
Brzina podizanja | m / min | 0.8 / 5 | 0.8 / 5 | 0.8 / 5 | 0.8 / 5 | 0.8 / 5 | 0.8 / 5 | 0.8 / 5 |
Visina podizanja | m | ≥ 6 | ≥ 6 | ≥ 6 | ≥ 6 | ≥ 6 | ≥ 6 | ≥ 6 |
Ukupna snaga motora | kW | 4.31 | 4.31 | 4.31 | 4.31 | 4.67 | 4.67 | 4.67 |
Brzina dizalice | m / min | 3-30 | 3-30 | 3-30 | 3-30 | 3-30 | 3-30 | 3-30 |
Brzina kolica | m / min | 2-20 | 2-20 | 2-20 | 2-20 | 2-20 | 2-20 | 2-20 |
Radna dužnost | M5 / A5 | |||||||


English
magyar
русский
한국어
Ar hñä ar Keleitaluoaotuomi
Nederlands
Srbija jezik (latinica)
Español
Melayu
tlhIngan
Latviešu
Việt Nam





