
Dizalica za dizanje teških dizalica, dvorana s dvostrukim gredama 30 tona
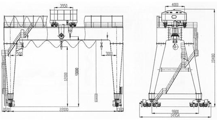
Dvostruka greda dizalica s kukama primjenjuje se ispred skladišta ili željeznice bočno za uobičajene radove dizanja i istovara. Ova vrsta dizalice sastoji se od mosta, nosača noge, organa za dizalicu, kolica s jakim vitlom, električne opreme i upravljačkog sustava. Kao svoj teški dizajn, može se široko koristiti u svim vrstama industrijskog polja.
teška dizalica za dizanje, dvostruka greda dizalica 30 tona
Dvostruka greda dizalica s kukama primjenjuje se ispred skladišta ili željeznice bočno za uobičajene radove dizanja i istovara. Ova vrsta dizalice sastoji se od mosta, nosača noge, organa za dizalicu, kolica s jakim vitlom, električne opreme i upravljačkog sustava. Kao svoj teški dizajn, može se široko koristiti u svim vrstama industrijskog polja.






English
magyar
русский
한국어
Ar hñä ar Keleitaluoaotuomi
Nederlands
Srbija jezik (latinica)
Español
Melayu
tlhIngan
Latviešu
Việt Nam





